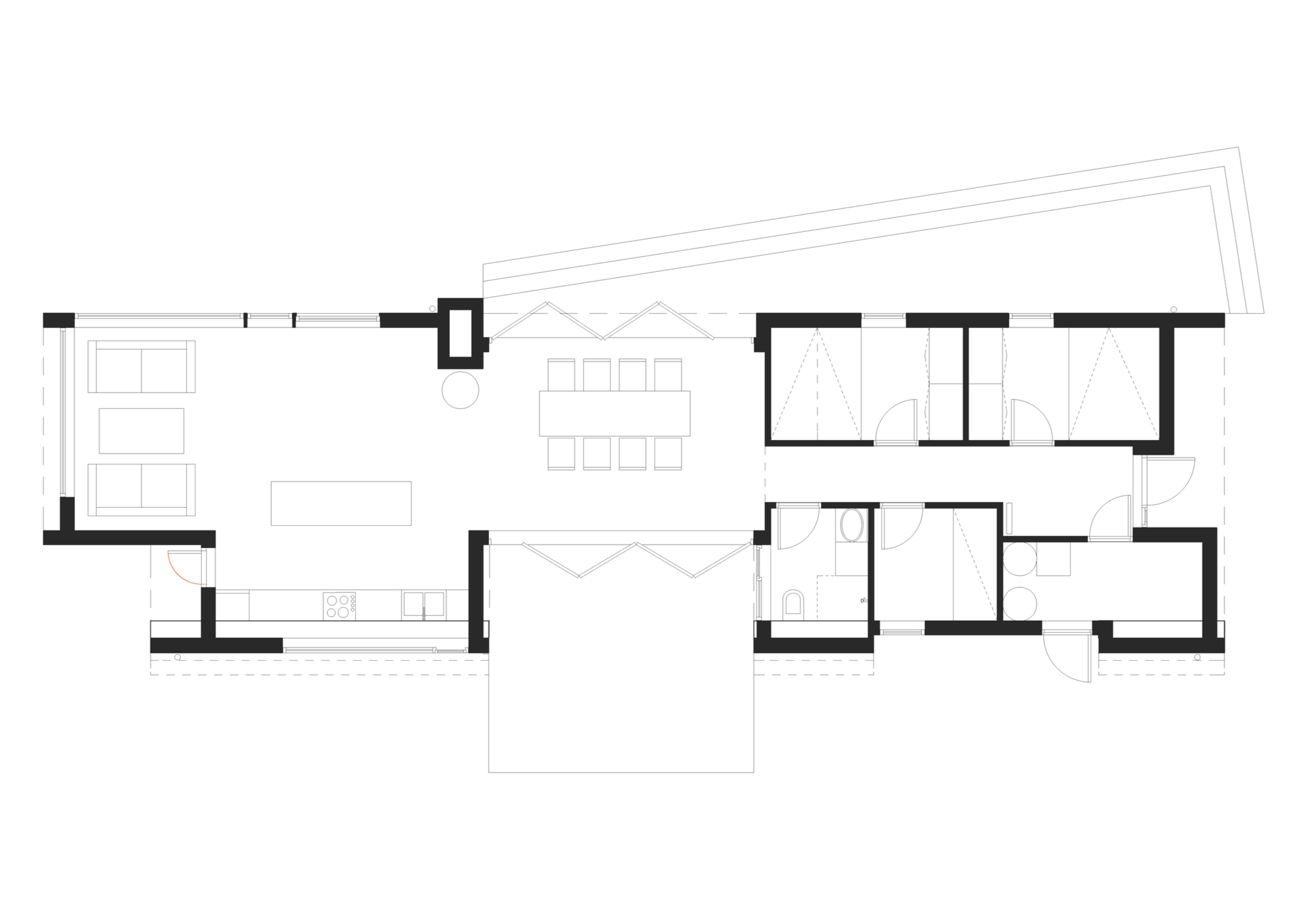
Li, utenfor Sandnes, ligger i en skrånende nordvendt terrengside med utsikt over Gandsfjorden.

To volumer knyttes sammen med et innglassert mellomparti som forbinder det lune utearealet i sør med utsikten mot nord. Materialvalg fremhever formspråket, og malmfurukledningen vil over tid få en sølvgrå patina.

Hytte i Li


Sted

Hommersåk

Type

Nybygg

Størrelse

-


Status

Ferdig bygget

Kunde

Privat

År

2010 - 2013

Samarbeid

-

Foto: Lise Bjelland